Торгово-производственная фирма ООО "АЛЬЯНСХЕМ"

  Поставка промышленного оборудования для обработки дерева, стекла, камня, металла.  

    Деревообрабатывающий инструмент     Деревообрабатывающий станок     Котел     Деревообрабатывающее оборудование

  Широкий выбор станков, инструмента. Доступные цены. Звоните по тел (948) 546-11-72.  

Главная

Оборудование

Инструмент

Прайс

О фирме





ПОКРАСОЧНЫЕ  КАМЕРЫ  С  ВОДЯНОЙ  ЗАВЕСОЙ
мод.  «CVA 3»,  «CVA 4».


Камера укомплектована всем необходимым и готова к работе!

Камера обеспечивает максимальную 4-ступенчатую очистку воздуха:

  • 1 ступень - водяная завеса по задней стенке камеры;

  • 2 ступень - система «ECOLOGICAL» - распыление воды под давлением;

  • 3 ступень -каскадная водяная завеса внутри камеры;

  • 4 ступень - фильтр финишной сухой очистки.

НАЗНАЧЕНИЕ:

Применение окрасочных кабин с водяной завесой позволяет повысить качество отделки и исключить влияние вредных веществ на человека и окружающую среду, что обуславливается различными факторами, связанными с размерами окрашиваемых изделий, объёмом и видом распыляемого материала, длительностью использования камер, требованиями по охране окружающей среды, рабочими затратами. Для всех случаев можно подобрать соответствующую камеру с фронтальной системой всасывания с водяной фильтрацией, обеспечивающей осаждение твердых частиц. При этом изделие должно находиться между оператором и активной завесой камеры. При выборе стенда необходимо оценить размеры окрашиваемого продукта и необходимость использования кабины для одновременной работы нескольких операторов.


ПРИНЦИП РАБОТЫ ВОДЯНЫХ КАБИН:

С помощью вентилятора, установленного на крыше камеры, создается разряжение, которое обеспечивает всасывание воздуха, с помощью водяной завесы (поз.1) происходит осаждение твердых пигментов краски. Промывка водой и дополнительная сухая фильтрация (D) позволяют улавливать аэрозоли и осаждать их в сборной ванне. Насос (поз.2) обеспечивает циркуляцию воды по ваннам (А, В, С), перелив из которых образует водяные завесы. B некоторых версиях имеются еще две дополнительные боковые завесы для оптимизации первой стадии фильтрации.

Камера состоит из оцинкованных металлических панелей, соединенных между собой болтами. Боковые панели и перегородки являются несущими, на крыше смонтирован центробежный вентилятор. Исполнение в различных модификациях: только всасывающий фронт, всасывающий фронт с дополнительными стенами и удлиненной крышей плюс ко всему нижние ванны, оснащенные решеткой, причем так же существует два варианта высоты,

Для тонкой очистки химического состава воздуха рекомендуется использовать автономную угольную установку KARB.



Преимущества «O.M.A.»:

- 4 ступени очистки;

- стенка каскадного типа;

- удобная смена фильтров;

- повышенная надежность;

- удобство текущего обслуживания;

- безопасность;

- склад зап. частей.


ТЕХНИЧЕСКИЕ ХАРАКТЕРИСТИКИ КАМЕР

Характеристики

Модели покрасочных камер Daphne (Италия)

CVA 3

CVA 4

Внешние габариты:

Длина, мм

3000

4000

Ширина, мм

2000

2000

Высота, мм

3200

3200

Габариты рабочего пространства:

Длина, мм

2920

2920

Ширина, мм

1140

1140

Высота, мм

2500

2500

Диаметр вытяжного отверстия на крыше камеры

600

600

Производительность вентиляторов, м3/час

10000

14000

Количество вентиляторов

1

1

Мощность вентиляторов, лс

3

5,5

Мощность гидронасоса, лс

1,5

1,5

Соответствие требованиям СЕ сертификации

+

+

Цена  со склада в Москве

6250 €

7640 €


Состав оборудования:

- несущая конструкция камеры, выполненная из гальванически оцинкованной жести

- узел аспирации воздуха

- комплект специальных фильтров для узла аспирации

- гидронасос дренажного типа

- двигатель гидронасоса

- соединительные трубы и компоненты для циркуляции воды внутри камеры.

- фронтальная водяная завеса

- малая приподнятая отстаивающая емкость, расположенная внизу камеры.

- флуоресцентная лампа – 2 штуки

- электрический пульт управления

- напряжение питания 380В/3/50Гц

- комплект монтажного оборудования

- электрооборудование в спец. исполнении

насос дренажного типа

фильтр финишной очистки воздуха



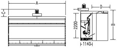
Модель/параметр

А

B

C

D

CVA 3

4000

2500

700

1140

CVA 4

3000

2500

800

1140






Рамные пилорамы - Ленточные пилорамы - Бревнопильные - Окорочные - Оцилиндровочные - Горбыльно-ребровые - Бревнотаски - Ленточно-делительные - Многопильные - Кромкообрезные - Торцовочные - Сушильные камеры - Влагомеры - Котлы на отходах - Для постформинга - Четырехсторонние - Паркетные - Круглопильные - Фуговальные - Фуговально-рейсмусовые - Рейсмусовые - Фрезерные станки - Копировальные - Автоподатчики - Шипорезные - Копировально-фрезерные - Для багета - Компрессорные - Для палочек для еды - Оконные центры - Бытовые - Комбинированные - Ленточно-пильные - Пазовально-сверлильные - Долбежно-цепные - Для шкантов - Круглопалочные - Токарные - Форматно-раскроечные - Кромкооблицовочные - Присадочно-сверлильные - Шлифовальные - Калибровально-шлифовальные - Клеенаносящие - Обрабатывающие центры - Прессы для облицовывания - Вакуумные прессы - Прессы для сращивания - Ваймы и пресса для щитов и окон - Прессы для склеивания бруса - Упаковочные - Дробилки - Прессы для брикетирования - Пылесосы - Покрасочные камеры - Заточные - Вальцовочные - Для формирования зубьев - Для сварки ленточных пил - Печь для углевыжигания - Дровокольные - Для стульев - Для шпона - Для домостроения - Лазерные - Комплексы для лесопиления - Рубительные - Стеклообрабатывающие - Для мягкой мебели - Для импрегнации изделий из древесины - Для искусственного старения - Камнеобрабатывающие - Для поддонов - Абразивно-отрезные - Вертикально-сверлильные - Вертикально-фрезерные - Гильотины - Горизонтально-фрезерные - Строгальные и долбежные - Заточные - Круглошлифовальные - Ленточнопильные - Листогибочные - Настольно-сверлильные - Настольно-токарные - Плоскошлифовальные - Прессы - Радиально-сверлильные - Ручные гильотины - Сверлильно-фрезерные - Специализированные - Токарно-винторезные - Токарные станки с ЧПУ - Точильно-шлифовальные - Трубонарезные - Широкоуниверсально-фрезерные - Станки АЛЬЯНСХЕМ - Печи - Транспортеры






© 2009 - 2016  ООО "АЛЬЯНСХЕМ".  Все права защищены.