Торгово-производственная фирма ООО "АЛЬЯНСХЕМ"

  Поставка промышленного оборудования для обработки дерева, стекла, камня, металла.  

    Деревообрабатывающий инструмент     Деревообрабатывающий станок     Котел     Деревообрабатывающее оборудование

  Широкий выбор станков, инструмента. Доступные цены. Звоните по тел (948) 546-11-72.  

Главная

Оборудование

Инструмент

Прайс

О фирме





БРИКЕТИРУЮЩИЕ ЛИНИИ BAS.



ГИДРАВЛИЧЕСКИЕ БРИКЕТНЫЕ ПРЕССЫ


Брикетные прессы перерабатывают для производства топлива, для более простой перевозки и хранения - опилки, стружки и древесную пыль, дробленые энергетические растения, рапсовую солому, кострику, измельченную бумагу, бумажную пыль, текстильное волокно, высокообъемные и пыльные промышленные отходы из отсасывающего оборудования и иные материалы с влажностью 8 - 13% и размерами менее 15 мм.


Параметры брикетов - форма цилиндра диаметром от 30 до 65 мм, длина от 30 до 70 мм, теплотворная способность 15 - 18 MДж/кг, без использования вяжущих веществ.


Брикетные прессы типа "HLS Hobby" предназначены для малых столярных мастерских. Конусная воронка пресса объемом 0,25 м3 и без датчика уровня вмещает в себя материал более чем на 1 час работы пресса.


Брикетные прессы типа "BrikStar" предназначены для широкого применения. Высокообъемная воронка пресса снабжена датчиком уровня материала, разгрузочной фрезой и червячным транспортером на дне воронки. Наполнение прессовочной камеры при помощи червячного механизма дает возможность универсального использования прессов для обработки материалов, от очень мелких опилок вплоть до грубой стружки. Загрузочную воронку брикетного пресса выгодно соединить с отсасывающим оборудованием материала в единую, не требующую обслуживающего персонала систему переработки отходов без пыли.


ТЕХНИЧЕСКИЕ ДАННЫЕ

Тип

Диаметр брикетов

Произв-ность, кг/час ±10%

Установл. электрич. мощность

Охладитель масла

Вес пресса, загрузочная воронка 1 м3

Вес пресса, загрузочная воронка 2 м3

Вес пресса, загрузочная воронка 3 м3

HLS 15 Hobby

30 мм

15

2,4 кВт

нельзя

260 кг

загруз. воронка только 0,25 м3

HLS 25 Hobby

65 мм

25

3,3 кВт

нельзя

460 кг

загруз. воронка только 0,25 м3

BrikStar 25

65 мм

25

4,3 кВт

принадл-ти на выбор

780 кг

870 кг

960 кг

BrikStar 50

65 мм

50

5,6 кВт

принадл-ти на выбор

790 кг

880 кг

970 кг

BrikStar 70

65 мм

70

6,9 кВт

принадл-ти на выбор

845 кг

905 кг

1025 кг

BrikStar 100

65 мм

100

9,3 кВт

да

1105 кг

1195 кг

1285 кг

BrikStar 150

65 мм

150

13,5 кВт

да

1160 кг

1250 кг

1340 кг

BrikStar 200

50 мм

200

14,5 кВт

да

-

1450 кг

1550 кг

BrikStar 400

50 мм

400

28 кВт

да

-

-

2500 кг


ПРИНАДЛЕЖНОСТИ НА ВЫБОР

- Разгрузочная фреза для более чем 200 кг материала в загрузочной воронке;

- Трубопровод для увеличения расстояния транспортировки брикет;

- Кожухи для работы под открытым небом, защищающие от погодных условий;

- Охладитель масла для прессов производительностью 25, 50 и 70 кг/час;

- Гидравлическое масло для температуры окружающей среды менее + 5o C;

- Датчик максимального уровня материала в загрузочной воронке;

- Левосторонний вариант исполнения брикетного пресса;

- Амортизатор вибрации брикетов.


ПРЕИМУЩЕСТВА ПРЕССОВ

Компактная конструкция – на одном основании находится пресс, включая кожухи, агрегат, загрузочную воронку и электрический распределитель

малые издержки на монтаж, быстрый ввод в эксплуатацию

Загрузочная воронка по выбору, с вертикальными углами и разгрузочной фрезой, снабженной лопастями, вмещает в себя до 200 кг материала

подача материала из воронки без создания свода

Червячная подача материала в прессовочную камеру

плавный переход между мелким и крупным материалом

Главный прессующий цилиндр с эффективными рабочими параметрами

хорошее качество брикетов и у материалов, мало пригодных для прессовки

Прессовочная камера высокой жесткости, произведенная по специальной технологии

длительный срок службы

Дозирование и прессовочное давление автоматически оптимизированы системой управления в зависимости от свойств материала

равномерная длина и качество брикетов также при чередовании материалов

Отдельные этапы прессовочного цикла программируются на компьютере

легкое приспособление к индивидуальным требованиям

Тихоходная гидравлика

отсутствие рабочего шума

Датчик минимального уровня материала для автоматич. выключения и пуска пресса

сведение к минимуму рабочих издержек

Контрольная дверца в стене воронки

легкий доступ к пространству воронки

Серийное оснащение счетчиком отработанных часов, указателем уровня масла в емкости и регулируемым термостатом

простота контроля и технического обслуживания

Фланец загрузочной воронки делает возможным простое подсоединение прессов к центральной системе отсасывания или же к отдельным отсасывающим устройствам

работа в режиме без участия обслуживающего персонала

Новая конструкция подачи материала в прессовочную камеру

безопасная обработка малых обрезков и сучков

Для материалов, обладающих влажностью более 15 %, поставляем сушилку для опилок BAS производительностью от 200 до 800 кг/час

сушка влажных, сыпучих материалов делает возможным брикетирование


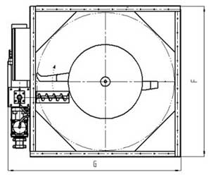
РАЗМЕРЫ ПРЕССОВ  "HLS" и "BrikStar"


HLS 15, 25 Hobby – прессы с конусной загрузочной воронкой


Тип

Длина

A

Ширина

B

Высота


Диаметр загрузочной воронки C

HLS 15 Hobby

1100

1000

1100

530 мм

HLS 25 Hobby

1370

1070

1300

530 мм


BRIKSTAR 25, 50, 70

Прессы с гидравлическим агрегатом под загрузочной воронкой



Объем загрузочной воронки

Длина

A

Ширина

B

Высота


Ширина загрузочной воронки C

1 м3

1435

1540

1300

1200

2 м3

1730

1980

1300

1600

3 м3

2010

2255

1300

1920


BrikStar 100, 150

Прессы с гидравлическим агрегатом и охладителем масла рядом с загрузочной воронкой на общей раме


Объем загрузочной воронки

Длина

A

Ширина

B

Высота


Ширина загрузочной воронки C

1 м3

1885

1540

1300

1200

2 м3

2190

1980

1300

1600

3 м3

2460

2255

1300

1920


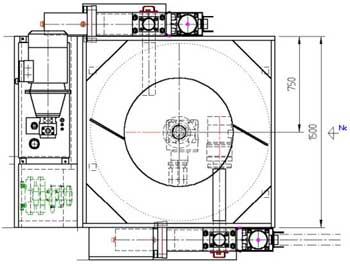
BrikStar 200, 400

Прессы с двумя или четырьмя прессовыми рамами у одной загрузочной воронки. BrikStar 400 – отделенный

гидравлический агрегат




Объем загруз. воронки

Длина

A

Ширина

B

Высота


Шир. загр. воронки C

BrikStar 200

2 м3

2190

2235

1300

1600

BrikStar 200

3 м3

2460

2515

1300

1920

BrikStar 400

3 м3

5000

3000

1300

1920


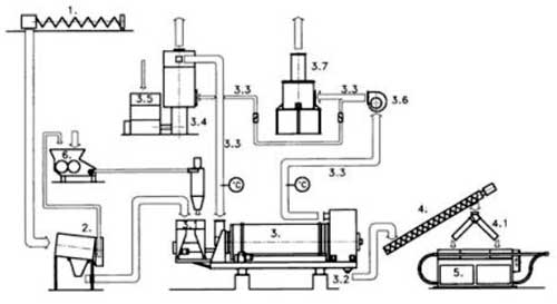
ОПИСАНИЕ ТЕХНИЧЕСКОГО ПРОЦЕССА

Технологическая линия для обработки опилок лесопиления посредством брикетирования с производительностью 200, 400, 600 или 800 кг брикетов в час. Линия состоит из подгребающего шнека для забора сырья из свободно насыпанной массы, системы ленточных и шнековых конвейеров для транспортировки опилок, сортировочного устройства, барабанной сушилки, включая котел для ее отопления, и одного (400 кг/час) или двух брикетных прессов.

Необработанные опилки складываются под навес. Подгребающий шнек подгребает материал в пространство над загрузочной воронкой сушилки. Сухой материал транспортируется в брикетный пресс. Произведенные брикеты подаются из пресса через трубопровод к выбранному месту упаковки. Упаковка не механизирована. Дополнение топлива в котле при производительности 800 кг/час автоматизировано.

Брикетные прессы по желанию можно снабдить матрицами для производства брикетов в форме блока.



1.    Шнековая подача

2.    Сито

3.    Сушильная камера

3.1. Бункер сырых опилок

3.2. Отвод сухих опилок

3.3. Воздушные трубопроводы

3.4. Бойлер SDDO-2 на опилках

3.5 Топливный бункер

3.6 Вентилятор

3.7 Фильтр

4.    Шнековая подача в брикетер

4.1. Развод на два брикетера

5.    Брикетирующий пресс

6.    Дробилка отходов


Комплекс по утилизации отходов и получению топливных брикетов из сырых отходов модели BAS 200, 400, 600, 800

Технические характеристики

BAS 200

BAS 400

BAS 600

BAS 800

Производительность

200 кг/ч

400 кг/ч

600 кг/ч

800 кг/ч

Производительность при 6000 часах работы в год

1200 т

2400 т

3600 т

4800 т

Потребление сырого сырья

2100 т

4200 т

6250 т

8400 т

Установочная мощность

5,3 кВт

9 кВт

15 кВт

19 кВт

Необходимая тепловая мощность

150 кВт

300 кВт

500 кВт

600 кВт

Потребное количество топлива (дерев. опилки)

35 кг/ч

75 кг/ч

150 кг/ч

200 кг/ч


Состав оборудования:

Цены на комплекс по утилизации отходов производительностью 200 кг/час

Наименование

Цена, Евро

1.   Автоматизированный склад

14900

1.3 Подающий конвейер 0,3 m-5,5 m

6700

2.   Сортировщик

7800

3.   Сушильная камера

39800

3.1 Бункер 1 м3

8900

3.2 Шнековое устройство выгрузки

4050

3.3 Воздуховод 8 м

1820

3.4 Бойлер на отходах

22180

3.5 Бункер оперативный

8900

3.6 Дымосос

2920

3.7 Центробежный циклон

6580

4.   Подающий конвейер 3 м (в брикетер)

4890

5. Брикетирующий пресс

19180

7. Поддерживающие стальные конструкции

15400

8.   Дробилка 120x3000 мм, 15kW, 300 кг/ч

23300

8.1 Конвейеры подающие 3м и отводящие 5м

7680

Итого, Евро

195000



BAS 200

BAS 400

BAS 600

BAS 800

Цена со склада в Москве с учетом шеф-монтажа

195 000 €

260 000 €

340 250 €

420 600 €


Срок поставки                            3,5 месяца

Гарантия на оборудование        1 год






Рамные пилорамы - Ленточные пилорамы - Бревнопильные - Окорочные - Оцилиндровочные - Горбыльно-ребровые - Бревнотаски - Ленточно-делительные - Многопильные - Кромкообрезные - Торцовочные - Сушильные камеры - Влагомеры - Котлы на отходах - Для постформинга - Четырехсторонние - Паркетные - Круглопильные - Фуговальные - Фуговально-рейсмусовые - Рейсмусовые - Фрезерные станки - Копировальные - Автоподатчики - Шипорезные - Копировально-фрезерные - Для багета - Компрессорные - Для палочек для еды - Оконные центры - Бытовые - Комбинированные - Ленточно-пильные - Пазовально-сверлильные - Долбежно-цепные - Для шкантов - Круглопалочные - Токарные - Форматно-раскроечные - Кромкооблицовочные - Присадочно-сверлильные - Шлифовальные - Калибровально-шлифовальные - Клеенаносящие - Обрабатывающие центры - Прессы для облицовывания - Вакуумные прессы - Прессы для сращивания - Ваймы и пресса для щитов и окон - Прессы для склеивания бруса - Упаковочные - Дробилки - Прессы для брикетирования - Пылесосы - Покрасочные камеры - Заточные - Вальцовочные - Для формирования зубьев - Для сварки ленточных пил - Печь для углевыжигания - Дровокольные - Для стульев - Для шпона - Для домостроения - Лазерные - Комплексы для лесопиления - Рубительные - Стеклообрабатывающие - Для мягкой мебели - Для импрегнации изделий из древесины - Для искусственного старения - Камнеобрабатывающие - Для поддонов - Абразивно-отрезные - Вертикально-сверлильные - Вертикально-фрезерные - Гильотины - Горизонтально-фрезерные - Строгальные и долбежные - Заточные - Круглошлифовальные - Ленточнопильные - Листогибочные - Настольно-сверлильные - Настольно-токарные - Плоскошлифовальные - Прессы - Радиально-сверлильные - Ручные гильотины - Сверлильно-фрезерные - Специализированные - Токарно-винторезные - Токарные станки с ЧПУ - Точильно-шлифовальные - Трубонарезные - Широкоуниверсально-фрезерные - Станки АЛЬЯНСХЕМ - Печи - Транспортеры






© 2009 - 2016  ООО "АЛЬЯНСХЕМ".  Все права защищены.