Торгово-производственная фирма ООО "АЛЬЯНСХЕМ"

  Поставка промышленного оборудования для обработки дерева, стекла, камня, металла.  

    Деревообрабатывающий инструмент     Деревообрабатывающий станок     Котел     Деревообрабатывающее оборудование

  Широкий выбор станков, инструмента. Доступные цены. Звоните по тел (948) 546-11-72.  

Главная

Оборудование

Инструмент

Прайс

О фирме





АВТОПОДАТЧИК  ДЛЯ  ЧЕТЫРЕХСТОРОННИХ  ПРОДОЛЬНО-ФРЕЗЕРНЫХ  СТАНКОВ

мод.  «CN-2»,  «CN-3».


НАЗНАЧЕНИЕ

    Предназначен для четырехсторонних станков со скоростью подачи до 100 м/мин. Обеспечивает непрерывную автоматическую подачу пиломатериалов различной длины верхними приводными роликами с боковым перемещением заготовок с поперечного транспортера.

    Автоподатчик устанавливается перед четырехсторонними продольно-фрезерным станками всех типов без длинного подающего стола.


ОБЛАСТЬ ПРИМЕНЕНИЯ

    Идеально подходит для применения на крупносерийных предприятиях и в цехах по производству столярно-строительных изделий, клееного строительного бруса и щита, производству профильных погонажных изделий, производству мебели, стандартного домостроения и других деревообрабатывающих производствах.



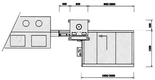
СХЕМА УСТАНОВКИ И ГАБАРИТНЫЕ РАЗМЕРЫ


мод. CN-2


Мод. СN-3


Т Е Х Н И Ч Е С К А Я       Х А Р А К Т Е Р И С Т И К А

Наименование параметров

Модель

CN-2

CN-3

Размеры подаваемых заготовок, мм :



- длина, наименьшая

500

500

- длина, наибольшая

4000

6000

- ширина

0 - 600

0 - 600

- толщина, наименьшая

5

5

- толщина, наибольшая

100

100

Количество подающих роликов, шт.

2

3

Скорость подачи, м /мин

0 - 100

0 - 100

Установленная мощность, кВт

1,5

1,5

Давление в пневмосистеме, МПа, (кг/см2)

0,6 (6)

0,6 (6)

Размеры поперечного транспортера, (длина х ширина), мм

1000/3000

2000/5000

Габаритные размеры, мм :



- длина

1800/3800

2800/4800

- ширина

2000

2000


КОНСТРУКТИВНЫЕ ОСОБЕННОСТИ, ОБЕСПЕЧИВАЮЩИЕ ВЫСОКУЮ ТОЧНОСТЬ И КАЧЕСТВО, УДОБСТВО ОБСЛУЖИВАНИЯ И ПОВЫШЕНИЕ ПРОИЗВОДИТЕЛЬНОСТИ

Поперечный цепной транспортер

Непрерывная подача заготовок осуществляется с поперечного цепного транспортера, выполняющего функцию магазина. Широкий транспортер обеспечивает расположение на нем достаточного количества заготовок для работы с высокой скоростью подачи станка.

Верхние рифленые ролики подачи с пневматическим поджимом

Заготовки подаются в рабочую зону продольно-фрезерного станка с помощью приводных роликов с пневматическим поджимом. Усилие поджима регулируется для каждого ролика отдельно и контролируется по показаниям манометров.

Нижний рифленый подающий ролик

Дополнительный нижний рифленый подающий ролик обеспечивает равномерную и надежную подачу длинных и широких заготовок.

Высокая скорость подачи

Автоподатчик может обеспечить автоматическую непрерывную подачу заготовок с высокой до 100 м/мин скоростью подачи, синхронизированной со скорость подачи продольно-фрезерного станка. Регулировка скорости подачи осуществляется бесступенчато.

Настройка верхних подающих роликов

Верхние приводные ролики имеют возможность настройки по высоте в зависимости от толщины подаваемой заготовки. Настройка осуществляется с помощью винтовой передачи перемещением корпуса по круглым направляющим.

Защитное ограждение

Подающие ролики закрываются защитным откидным ограждением, обеспечивающим безопасность работы автоподатчика.






Рамные пилорамы - Ленточные пилорамы - Бревнопильные - Окорочные - Оцилиндровочные - Горбыльно-ребровые - Бревнотаски - Ленточно-делительные - Многопильные - Кромкообрезные - Торцовочные - Сушильные камеры - Влагомеры - Котлы на отходах - Для постформинга - Четырехсторонние - Паркетные - Круглопильные - Фуговальные - Фуговально-рейсмусовые - Рейсмусовые - Фрезерные станки - Копировальные - Автоподатчики - Шипорезные - Копировально-фрезерные - Для багета - Компрессорные - Для палочек для еды - Оконные центры - Бытовые - Комбинированные - Ленточно-пильные - Пазовально-сверлильные - Долбежно-цепные - Для шкантов - Круглопалочные - Токарные - Форматно-раскроечные - Кромкооблицовочные - Присадочно-сверлильные - Шлифовальные - Калибровально-шлифовальные - Клеенаносящие - Обрабатывающие центры - Прессы для облицовывания - Вакуумные прессы - Прессы для сращивания - Ваймы и пресса для щитов и окон - Прессы для склеивания бруса - Упаковочные - Дробилки - Прессы для брикетирования - Пылесосы - Покрасочные камеры - Заточные - Вальцовочные - Для формирования зубьев - Для сварки ленточных пил - Печь для углевыжигания - Дровокольные - Для стульев - Для шпона - Для домостроения - Лазерные - Комплексы для лесопиления - Рубительные - Стеклообрабатывающие - Для мягкой мебели - Для импрегнации изделий из древесины - Для искусственного старения - Камнеобрабатывающие - Для поддонов - Абразивно-отрезные - Вертикально-сверлильные - Вертикально-фрезерные - Гильотины - Горизонтально-фрезерные - Строгальные и долбежные - Заточные - Круглошлифовальные - Ленточнопильные - Листогибочные - Настольно-сверлильные - Настольно-токарные - Плоскошлифовальные - Прессы - Радиально-сверлильные - Ручные гильотины - Сверлильно-фрезерные - Специализированные - Токарно-винторезные - Токарные станки с ЧПУ - Точильно-шлифовальные - Трубонарезные - Широкоуниверсально-фрезерные - Станки АЛЬЯНСХЕМ - Печи - Транспортеры






© 2009 - 2016  ООО "АЛЬЯНСХЕМ".  Все права защищены.